Custom Millwork
OUR CUSTOM MILL SHOP IS AS OLD AS THE COMPANY ITSELF, DATING BACK TO THE 1920'S WHEN OUR REPUTATION FOR WOODWORKING BEGAN
For nearly as long as we’ve been in business, the craftsmen in our mill shop have been creating high quality woodworking and architectural millwork for local contractors and homeowners. Our shop specializes in intricate custom products such as entry doors, windows and shutters, mouldings, and curved woodwork. We are also able to replicate or restore historical pieces using traditional wood or modern weather-resistant cellular PVC. Our experienced designers and estimators can walk you through the process of making your project a reality.
Our mill shop is ready to take on your next project whether it is replicating a piece of millwork that’s starting to show its age or designing a custom entryway for a new home. Share your plans with our estimating department and let us show you how we can help.
SELECTED WORK
CUSTOM DOOR STEVENSON, MD
We worked with the homeowner to develop a unique front entry door. This unit received a custom routed interior grille pattern, similar to what the homeowner had seen in a magazine.
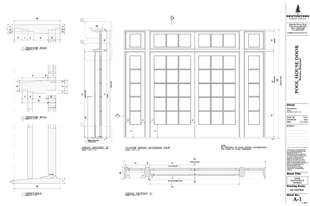
CUSTOM DOOR DRAWINGS
Most millwork, especially custom doors, begin in our design and drafting department, where aesthetics and details are considered prior to fabrication. Here is a selection of custom door drawings we use for both customer approval and mill shop fabrication.
SHEPPARD PRATT GATEHOUSE BALTIMORE, MD
The general contractor approached us about the restoration of the Sheppard Pratt Gatehouse, and fabricating new “spires” out of aluminum and Azek PVC trim. After welding the aluminum frames, we used a technique called miter folding to reduce seams in the PVC spires.
FRONT ENTRY GATE ANNAPOLIS, MD
We fabricated this entry gate beginning with steel posts buried in stone pillars. A steel frame for each gate door was fabricated, wrapped in Spanish cedar, and hung on the steel posts with custom, powder coated hinges.
HISTORIC CORBELS
A local church needed the majority of their original wood corbels replicated. We proposed and fabricated identical corbels in Azek, a leading brand of PVC trim, which now hang in the same locations as the original corbels.























